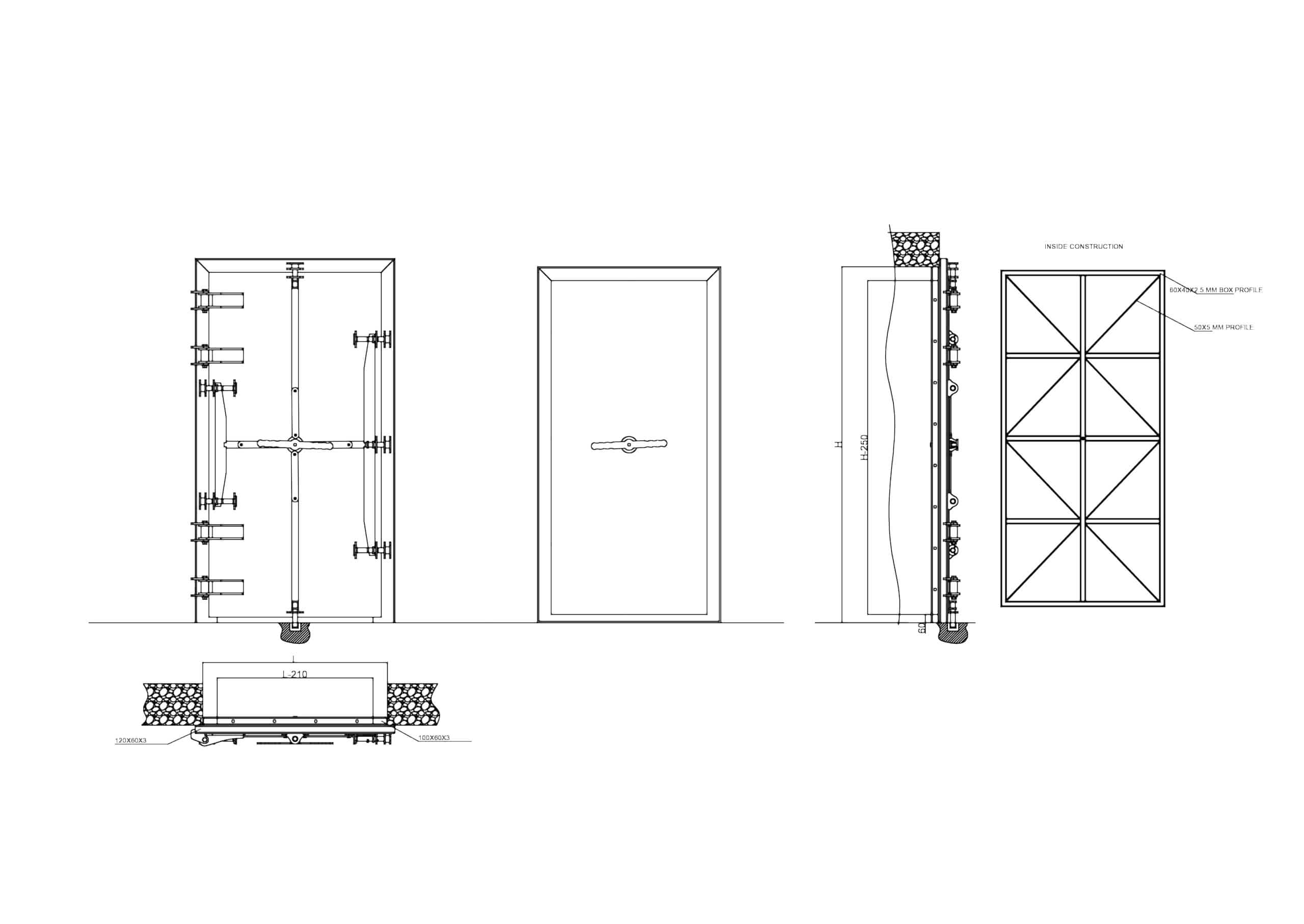
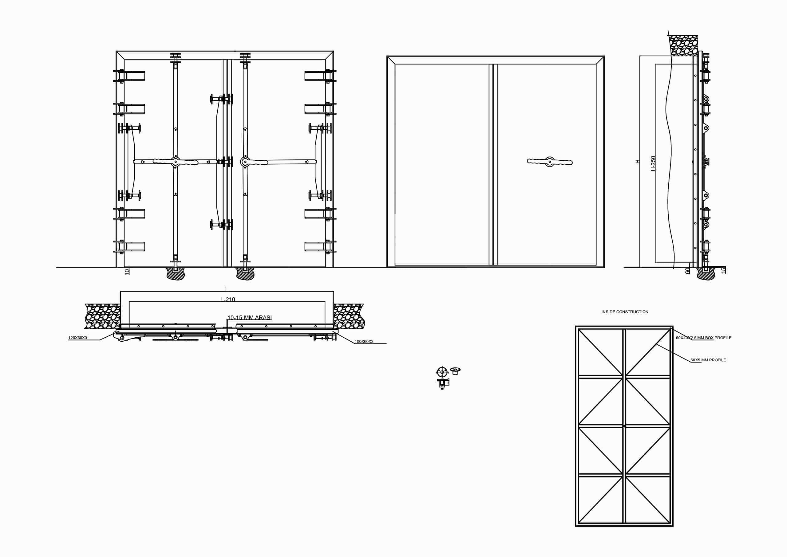
Dimak Kapı, EXR4 standartlarına uygun olarak tasarlanmış patlamaya dayanımlı kapılar üretmekte ve profesyonel montajını gerçekleştirmektedir.
Dimak Kapı’ın EXR4 sınıfı patlamaya dayanımlı kapıları, yüksek patlama basınçlarına karşı koruma sağlamak amacıyla tasarlanmakta ve test edilmektedir. 2600x2600 mm ölçülerindeki beton açıklıklar üzerinde yapılan tam ölçekli testler ve simülasyonlarla kapıların güvenlik performansı doğrulanmaktadır. Sağlam çelik kutu profiller, 4 mm çelik kaplama ve özel tasarlanmış ağır hizmet menteşeler sayesinde uzun ömürlü ve yüksek güvenlikli çözümler sunulmaktadır.
Projeye özel ihtiyaçlara göre farklı ebat ve teknik özelliklerde üretilebilen patlamaya dayanımlı kapılar, 6 veya 9 noktalı kilitleme mekanizması, yüksek mukavemetli çelik sürgüler ve isteğe bağlı manyetik kilit entegrasyonu ile donatılabilmektedir. Askeri tesislerden laboratuvarlara, kritik güvenlik gerektiren tüm alanlarda kullanılan bu kapılar, yüksek dayanım, güvenlik ve uzun ömürlü kullanım avantajlarıyla tercih edilmektedir.























